Silver Winner of the International Architecture & Design Awards 2026
A Linear Village: Reconnecting Island Life
Public Building & Civic Architecture
Completed / Built / Professional Category
Architect / Designer:
Sunhee Hong
Studio:
Flat Architects Studio
Design Team:
Project Title : FLAT ARCHITECTURE : Adaptive Field for Collective Urban Life
Lead Architect / Principal Designer : Sunny Hong
Design Team
: Architectural Design – [isik hong]
: Urban Strategy & Research – [byoungyoon oh]
Studio / Practice : Flat Architecture Studio
Collaborating Consultants
: Structural Engineering – [pyogujo-enjinieoling / junpyo jeon]
: Building Services (MEP) – [Gikwang Engineering / jongteak lee]
: Landscape & Public Realm – [Flat architects Studio/ sunhee hong]
Client : Shinan-gun
Project Location : Jaeun-myeon, Sinan-gun, South Korea
Project Typology : Public / Cultural / Mixed-Use / Urban Prototype
Site Area : 3400m²
Gross Floor Area : 1449.44m²
Year of Design : 2024
Project Status : Completed building
Copyright:
Yongsoo Kim
Country:
Korea, Republic of
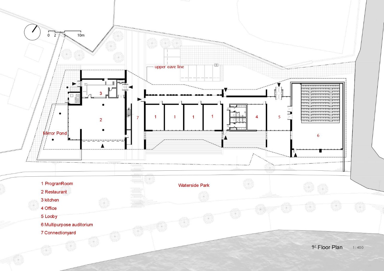
Located on Jaeun Island, the Jaeun Multipurpose Community Center responds to the fragmented social and geographical conditions of an archipelago where access and interaction are often limited.
Rather than a single-purpose building, the project proposes a linear community spine that connects everyday activities—dining, learning, gathering, and performance—into a continuous spatial sequence. This configuration transforms the building into an extension of the village, enabling flexible and spontaneous use.
The architecture is defined by six fragmented roof volumes, each corresponding to different program scales. These are unified by a continuous deep eave that extends into outdoor spaces, creating a series of in-between environments that blur the boundary between interior and exterior.
Situated between the village and an agricultural reservoir, the project reclaims an underused embankment as a public landscape. Gardens, yards, and a rooftop deck reconnect residents to the water while enhancing accessibility.
The building integrates passive environmental strategies and a photovoltaic system, achieving zero-energy certification. More than a facility, it acts as a shared social infrastructure that supports everyday life on the island.
Flat Architects Studio
This project proposes Flat Architecture as an innovative, non-hierarchical spatial framework that redefines how architecture engages with contemporary urban life.
Moving beyond object-based design, the project establishes a continuous and adaptive spatial field that promotes inclusivity, accessibility, and collective interaction.
It responds to the increasing demand for flexible environments, social connectivity, and resilient urban systems, positioning architecture as an open platform for evolving human activities.
Flat Architecture operates as a dynamic interface between people, program, and environment.
A democratic spatial organization where no single function dominates, encouraging equal participation and use.
The building extends the ground plane into a seamless public surface, dissolving boundaries between architecture and city.
Flat Architecture redefines architecture as a relational and performative field, rather than a fixed object.
