Platinum Winner of the International Architecture & Design Awards 2026
Atlanticus Office
Corporate & Office Interior Design
Completed / Built / Professional Category
Architect / Designer:
Paulo Costa arq. e Sónia Abreu arq.
Studio:
Risco Singular-Arquitectura, Lda
Design Team:
Paulo Costa arq.
Sónia Abreu arq.
Cláudia Alves arq.
Simão Lima arq.
Copyright:
Alexander Bogoroskiy
Country:
Portugal
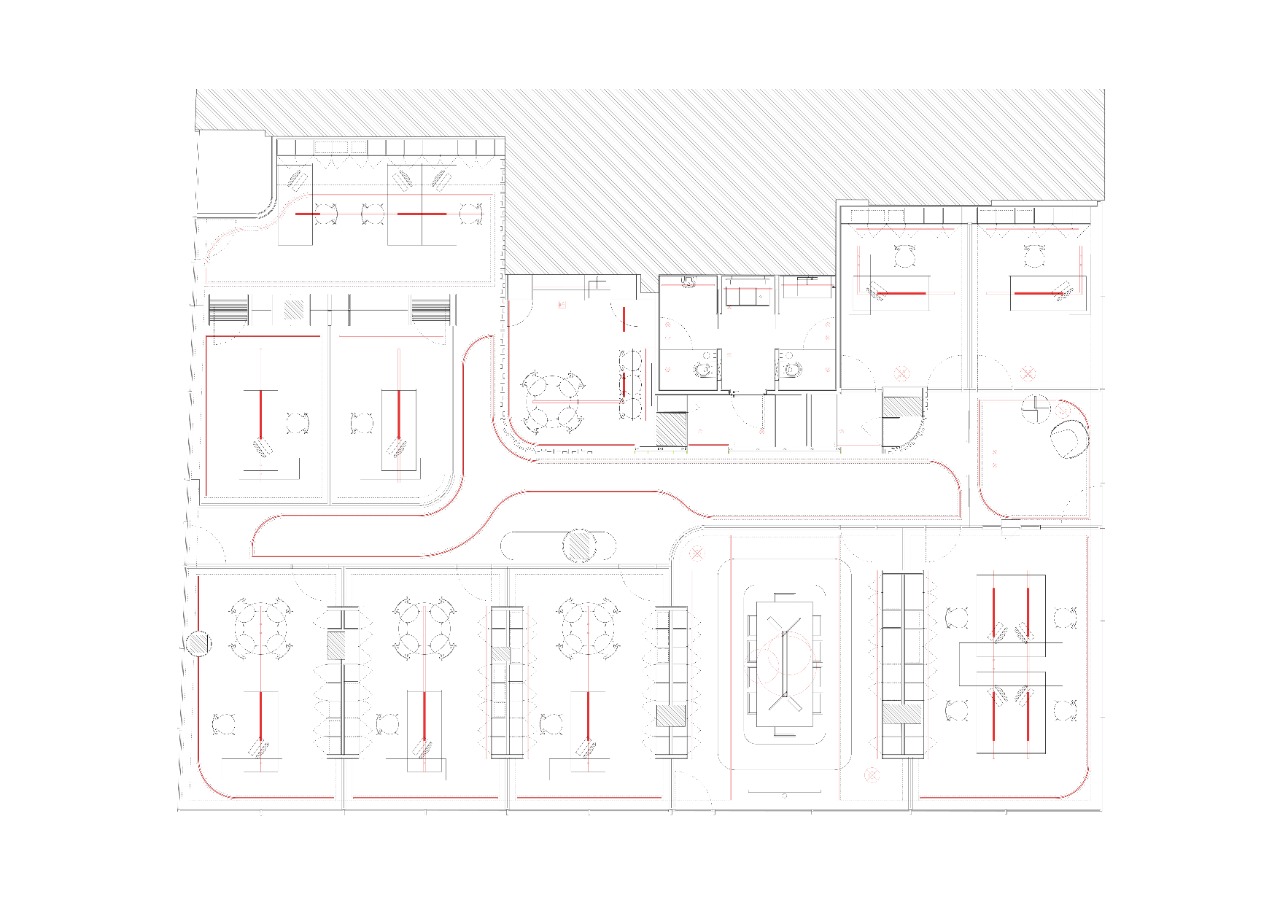
Between the Atlantic light and the fineness of transparencies, the space is designed as a continuous indoor landscape, where architecture and atmosphere merge into a subtle sensory experience. Glass takes on the role of a guiding element, drawing paths, reflections, and visual overlays that amplify the perception of space and allow light to circulate freely. Curved surfaces soften the structural presence, dissolving rigidity and building a sequence of fluid environments, where boundaries are suggested not imposed.
The slatted wood appears as a filter and transition, introducing rhythm, shadow, and depth into the space. Through it, the path leads to a vertical garden that brings nature inside, creating a moment of pause and breath in the daily work routine. The presence of vegetation, combined with natural light, establishes a sensory relationship with the exterior, reinforcing well-being and balance.
The materials are chosen for the way they interact with light, reflecting, absorbing, and transforming it, creating, through smooth surfaces, warm textures, and translucent transparencies, a serene and enveloping atmosphere. Privacy is subtly expressed in the frosted glass and visual overlays, while maintaining the lightness and permeability of the space.
Each element, from the spatial organisation to furniture and lighting design, is conceived as part of a coherent whole. The result is an environment where functionality and poetry coexist, transforming the workplace into a luminous, fluid, and profoundly human experience.
