Silver Winner of the International Architecture & Design Awards 2026
Dancing On The Edge
Cultural & Arts Centers
Concept / Professional Category
Architect / Designer:
Wenlu Guo
Copyright:
N/A
Country:
United States
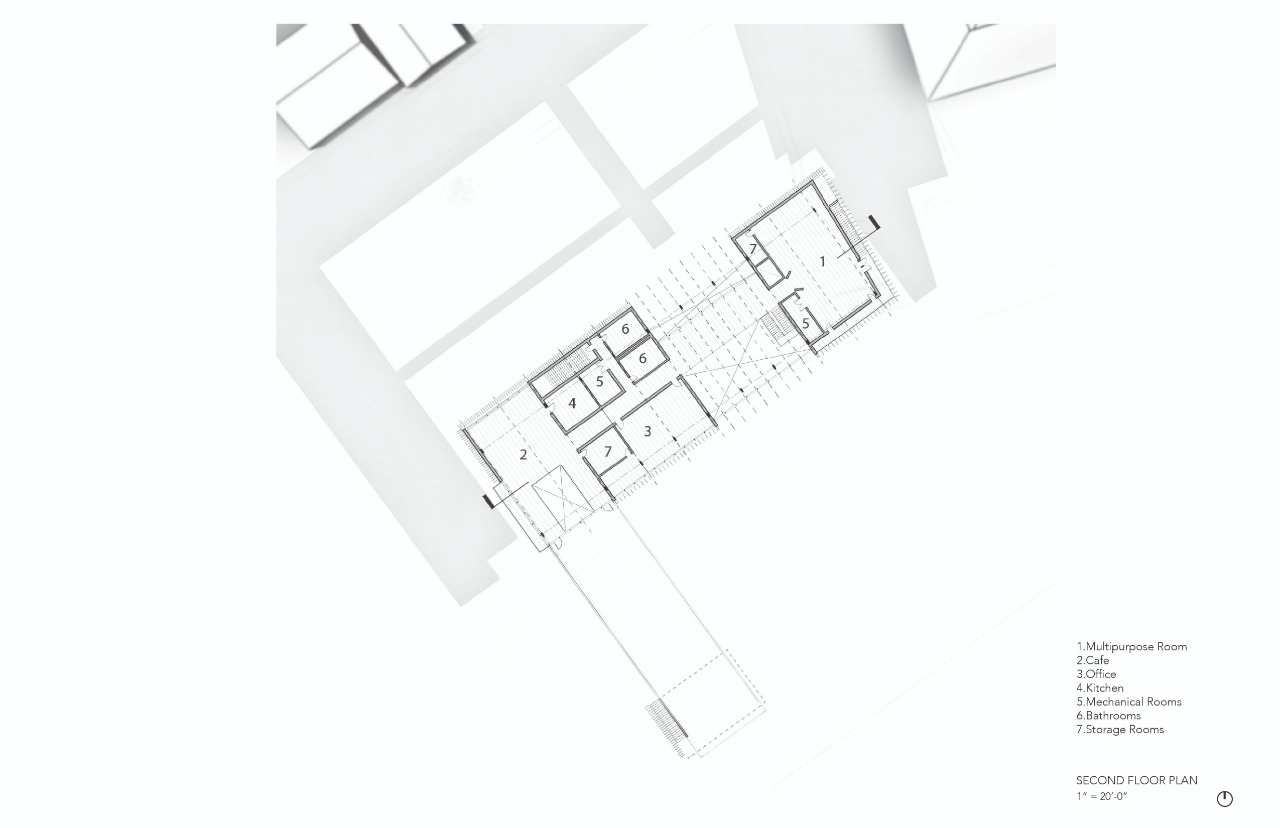
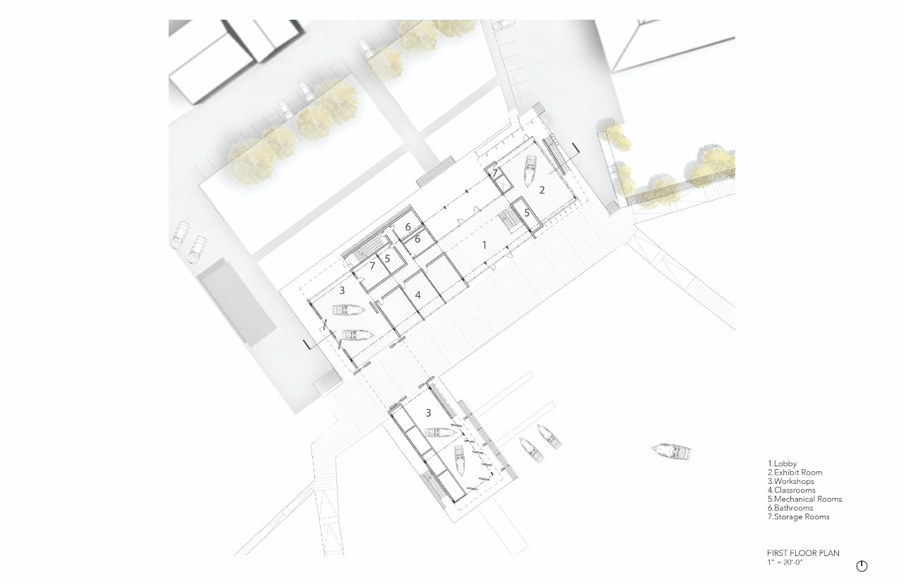
Dancing On The Edge: Reimagining the Manteo Boatcraft Center
Located in downtown Manteo, North Carolina, USA, beside the historic lighthouse, this project reimagines a traditional boatcraft center as a vibrant civic landmark that celebrates wooden boatbuilding while activating the public waterfront. Bounded by marshland to the west and open water to the south, the site’s unique environmental context directly informs the architecture’s orientation and massing.
At the core of the design is a central “light box” that delicately mediates between land and water. Serving as both a transitional threshold and an illuminated beacon, it welcomes visitors onto the site and draws them toward the coast. To maximize public engagement, the boat workshop is placed perpendicular to the main building along the water’s edge. This strategic placement not only defines a clear boardwalk circulation but also opens generous gathering spaces along the waterfront, inviting the community to interact with the craft.
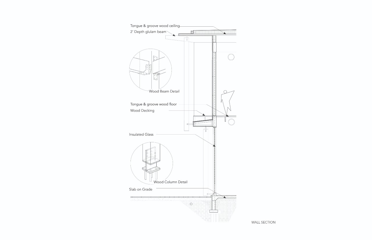
Living up to the concept of “dancing on the edge” of land and sea, the main façade is deeply inspired by the rhythm of ocean waves. It reinterprets local timber craft through the use of undulating wood panels. Throughout the day, sunlight animates these rhythmic surfaces, casting shifting patterns of shadow that beautifully echo the movement of water. Ultimately, the design transforms familiar, local materials into a striking contemporary expression of community, craft, and place.
