Platinum Winner of the International Architecture & Design Awards 2026
Double Face: Facades as Architectural Responses to Mixed-Use Functions
Mixed-Use Development Design
Concept / Student Category
Architect / Designer:
Huang shih chi
Country:
Taiwan
Double Face explores how architecture can respond to mixed-use programs through façade articulation, circulation strategy, and spatial sequencing, rather than a unified formal expression.
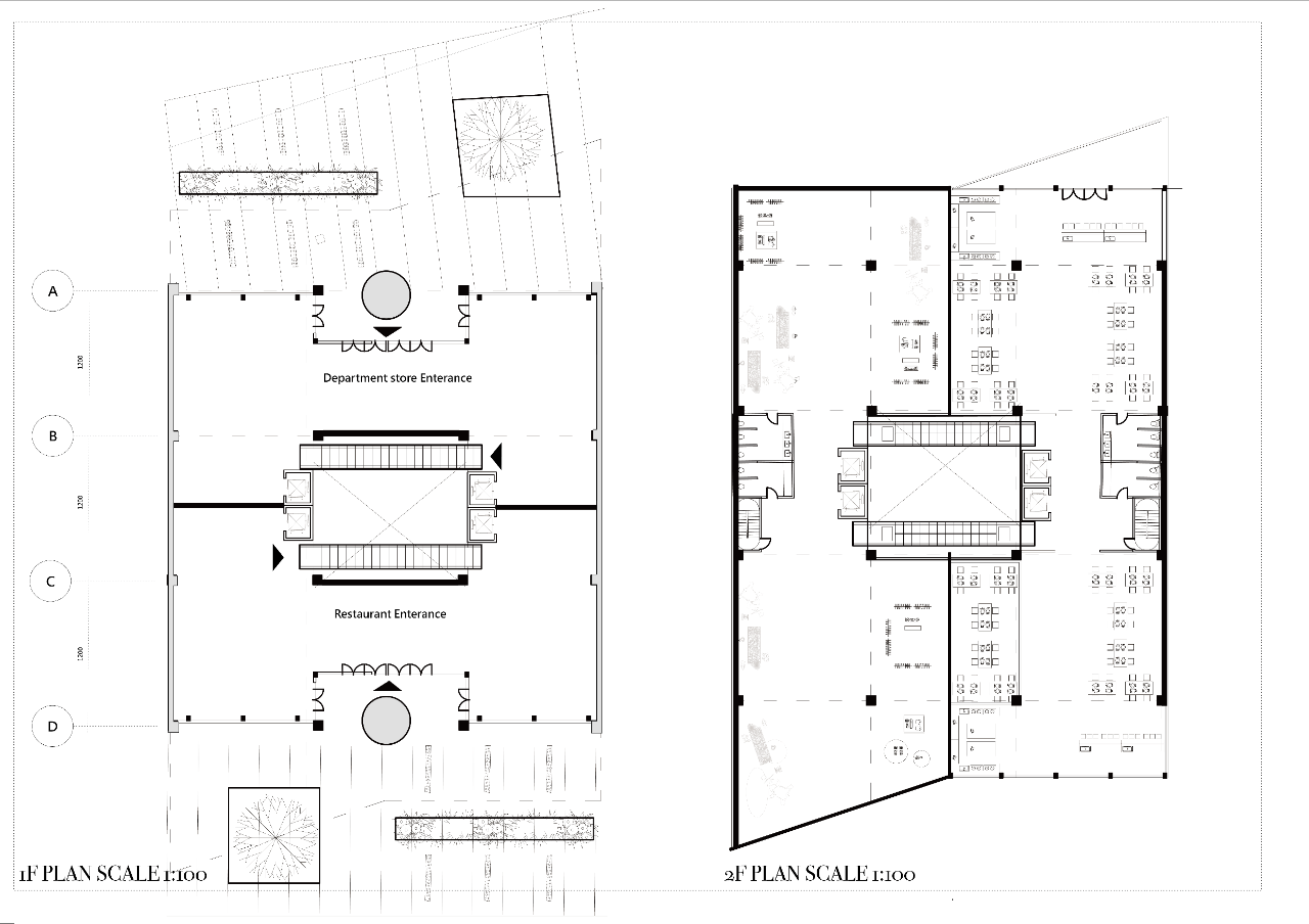
The project is situated on a dual-frontage urban site, facing two different streets. This condition becomes the starting point of the design, generating two distinct systems that respond to both urban edges and programmatic needs.
The building consists of two primary programs: a department store and a restaurant. Each requires a different relationship between interior and city. The department store is inward-oriented, relying on controlled circulation, artificial lighting, and curated display environments. In contrast, the restaurant is outward-oriented, emphasizing openness, daylight, and social interaction.
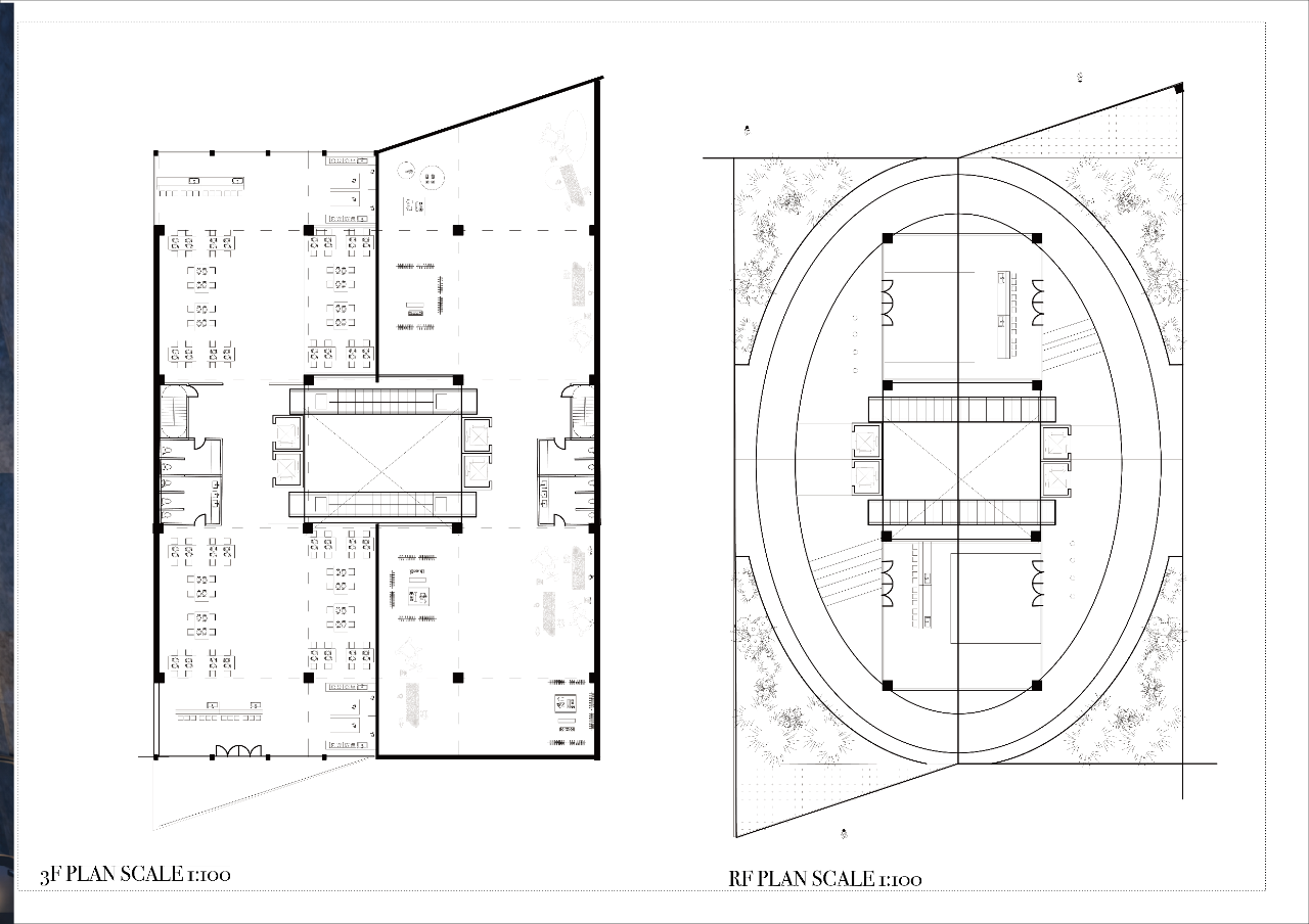
This divergence is reflected not only in façade expression but also in plan organization. The ground floor establishes two separate entrances corresponding to each street, allowing both programs to maintain their own identity. Circulation initially separates, then shifts through a central escalator core where vertical movement gradually connects the systems.
Rather than immediate integration, the project delays full spatial understanding. Programs remain partially concealed and are only revealed through movement. As visitors ascend, fragmented views create layered relationships between retail and dining, forming an evolving spatial narrative.
At the rooftop level, circulation converges and the building’s duality becomes fully legible. The two façades, two systems, and two urban interfaces are finally understood as parts of a single architectural whole.
The project redefines the façade as a spatial interface, proposing that architectural coherence can emerge from difference—constructed not through uniformity, but through movement, sequence, and experience.
