Bronze Winner of the International Architecture & Design Awards 2026
Level One
Private Residence & Custom Home Design
Completed / Built / Professional Category
Architect / Designer:
Alex Gore
Studio:
F9 Productions
Design Team:
Rohs Heck, F9 Productions, Architect
Marpa Landscape Architecture & Construction, Landscape Architect
Cornerstone Homes, Builder
Copyright:
Jason Buss, F9 Productions
Country:
United States
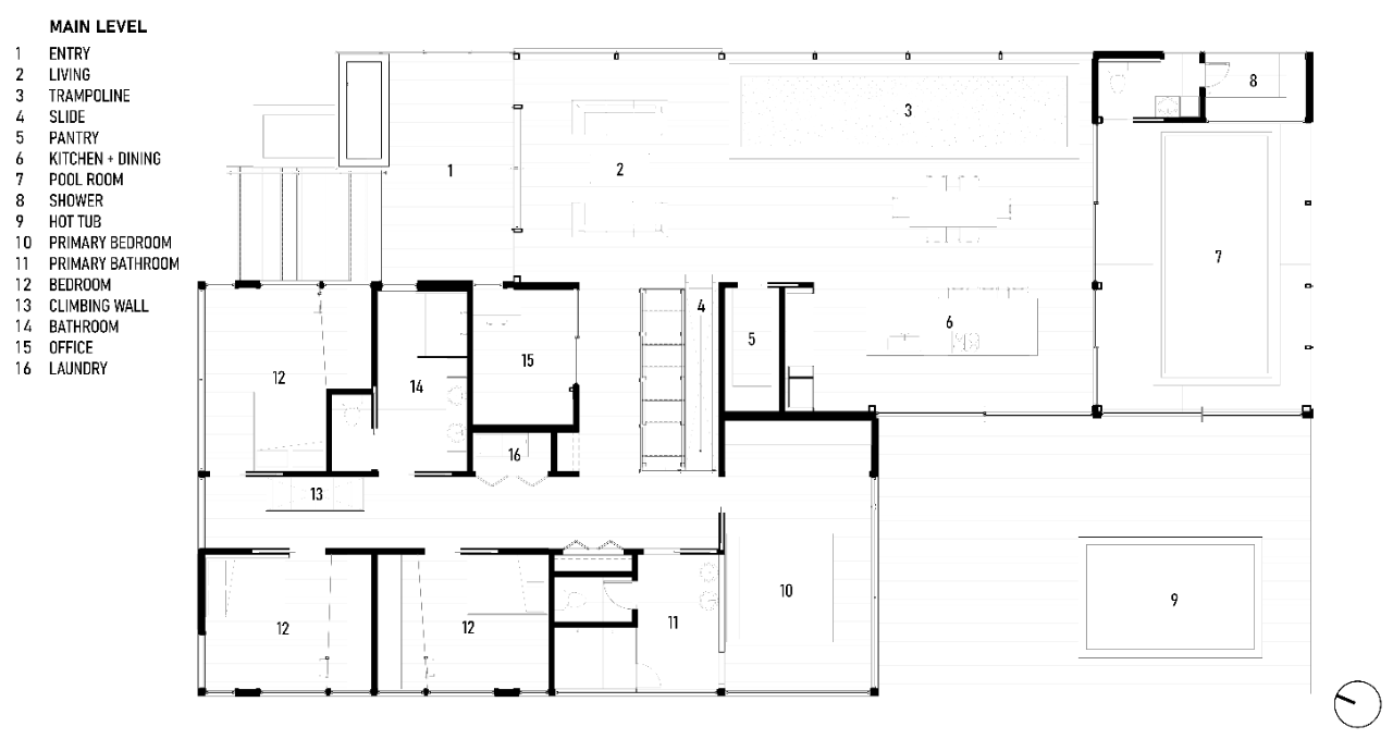
Perched on a steep half-acre site at the base of Boulder’s iconic Flatirons, the Level One Residence is a 5,620-square-foot custom home completed in early 2023 for a family of four. This five-bedroom dwelling fuses technical precision, energy efficiency, and whimsical family-oriented design, creating a luminous sanctuary that celebrates natural light, play, and connection to the rugged Colorado landscape.
The design objectives stemmed from the clients’ desire for a home that prioritizes togetherness while accommodating distinct public and private zones. Inspired by our studio’s book The Creativity Code, the architects engaged in a collaborative process, presenting an initial concept that resonated immediately: a transparent, light-filled structure emphasizing family dynamics. The house is organized into two interconnected levels, with a central vertical core: featuring stairs, a playful slide, and a skylight. Linking spaces and reinforcing themes of fun and illumination. The public wing centers on an expansive kitchen island that anchors the living, dining, and recreational areas, including an indoor pool, trampoline zone, and steam/sauna room. Large sliding glass doors dissolve boundaries between interior and exterior, merging the kitchen, pool, and rear deck into a seamless gathering space. The private wing houses bedrooms, an office, laundry, and bathrooms, with hallways ending in full-height glazing to maximize views and minimize dead ends. Exposed structural elements, flush details, and LED accents enhance the sense of openness and sophistication.
Project constraints included the site’s dramatic slope and exposure to extreme 165 mph winds, necessitating a robust foundation of over 70 caissons extending 30 feet deep. The lower “service floor,” a concrete podium clad in weathering Corten steel, houses the garage, mechanicals, multipurpose room with rock climbing wall, and bathroom, providing stability for the upper levels. Above, a lightweight “glass lantern” superstructure uses a quarter-mile of steel framing to support 3,000 square feet of triple-pane glazing, achieving panoramic 360-degree views while withstanding environmental forces.
Sustainable design strategies integrate performance-driven materials and systems. Continuous rigid insulation wraps foundations, walls, and cantilevers for superior thermal bridging control. Triple-glazed windows offer R-10 insulation, paired with air-source heat pumps powering radiant flooring. A rooftop solar array offsets substantial energy needs, while exposed plywood soffits and custom plywood millwork promote material honesty and warmth. Externally, Corten steel patinas naturally, requiring minimal maintenance. This engineered “tree” of a house conceals its rigor beneath effortless transparency, transforming domestic life into shared delight amid Boulder’s challenging terrain.
F9 Productions
F9 Productions is an award-winning architecture and design firm headquartered in Longmont, Colorado, with a presence in Denver. Specializing in innovative, sustainable designs for residential, commercial, multi-family, and mixed-use projects, F9 Productions combines visionary architecture with practical construction expertise. Founded on the principle of creating spaces that are beautiful, functional, and enduring, the firm has established itself as a leader in Colorado’s architecture scene since its inception in 2009.
With a team of experienced, energetic professionals, F9 Productions goes beyond traditional design services by integrating the permit process, budgeting, and construction oversight into their workflow. This holistic approach ensures that clients’ visions are realized efficiently, without the common pitfalls of miscommunication between designers and builders.
