Silver Winner of the International Architecture & Design Awards 2026
National Building Museum, Visible Vault: Open Collections Storage
Showroom, Exhibit & Gallery Interior Design
Completed / Built / Professional Category
Architect / Designer:
Wendy Evans Joseph
Studio:
Studio Joseph
Design Team:
Wendy Evans Joseph, Partner-in-charge
Jose Luis Vidalon, Project Manager
Felipe Colin Jr., Designer
Xingyao Wang, Architecural Designer
Brandon Studer, Graphic designer
Copyright:
Stephen A. Miller for Interior, Elman Studio for Exterior | All renderings and drawings by Studio Joseph
Country:
United States
The Visible Vault redefines museum storage by transforming it into an interactive, publicly accessible gallery that offers secure, staff-free educational engagement, maximizes display efficiency within a modest budget, and expands access while fostering deeper visitor interaction, storytelling, and community participation.
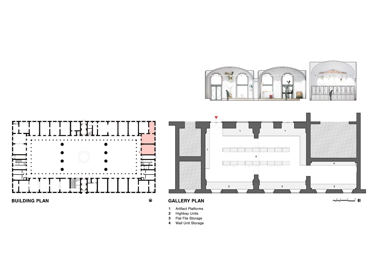
This area of collection storage brings to the public over 5000 objects representing a wide range of the National Building Museum’s collection. Yet it is not a traditional museum storeroom but an interactive, publicly accessible gallery that invites exploration and celebration. The displays are secure, and the layout fosters educational opportunities and casual teaching moments without requiring staff to be present. Local and destination tourists, scholars, and children have unprecedented access to these powerful artifacts. The presentation is straightforward yet artful, providing multiple points of entry and redefining what it means to be a museum dedicated to the building industries.
An important part of the National Building Museum’s mission is to increase access to its diverse collection and to engage both professionals and the public. Though the museum had no archive when it was founded in 1980, its collection has grown to over 350,000 objects, including tools, toys, architectural models, works on paper, photographs, ephemera, and historical building fragments. These artifacts inspire curiosity about the built environment, connecting visitors to the tools that build homes, the designs of monuments, and the souvenirs that shape our collective memory.
The layout maximizes display space, keeping circulation efficient and fully accessible. Given a modest budget, custom-designed vitrines were locally fabricated, ensuring greater transparency and flexibility than proprietary systems. They are easily adjusted for diverse, oversized, and heavy items. A white-and-gray palette serves as a neutral backdrop, enhancing the visibility of items on display on pedestals, in cases, or in drawers. The design features wood floors, powder-coated safety rails, and glass enclosures, with labels and graphics accommodating low-vision accessibility. Additional information is available through digital access points.
Visible Vault is a popular destination, as both adults and children are equally excited about the technical equipment as they are about the toys and the wide array of souvenir buildings. Increased interaction with the collections encourages visitors to add their stories and knowledge. Environmental graphics in the Great Hall enhance the building’s fun quality and support overall wayfinding.
The space houses approximately 25% of the NBM’s 3D collection, freeing over 1,000 square feet of shelving for new acquisitions in closed conservation storage. The gallery highlights new acquisitions and hosts special exhibits tied to seasonal events.
Studio Joseph
Studio Joseph is an architecture and experience design practice working in the educational, cultural, and public realms. We create beautiful spaces that nurture the lives of people who use them, fostering learning, thinking, and community gathering.
Our process is to understand a project’s driving spirit and embody it in the spatial realm. We begin with research to look beyond the obvious and identify core narratives and strategies. From there, we develop a conceptual underpinning that balances the pragmatic with the poetic. We maintain conceptual rigor while obsessing over the details. With a commitment to empathy-based design, we draw on the diverse needs and affordances of a public audience—from physical accessibility to cultural understandings to sensory abilities. In our work and our workplace, we are committed to championing sustainable practices, equitable communities, and inclusive environments. Although projects differ in scale and typology, they embrace our shared humanity.
